bigger 1900
1900
1600
1440
1280
1160
1024
940
850
767
600
480
360
320
portrait ipad
landscape ipad

Eigentumswhg

in Berlin

-Moabit

BERL 18 WE2

Refugium mitten drin

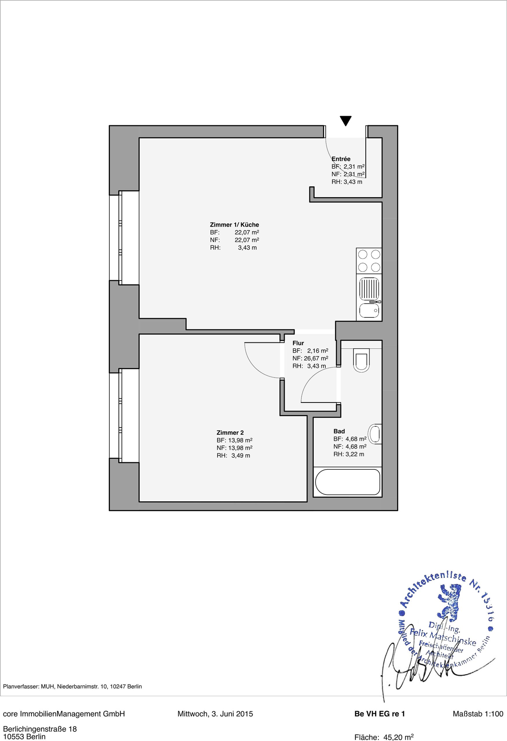
Atelier, Schreibort, Wohnung - so klein sie ist, so bietet diese Erdgeschosswohnung dennoch viele Möglichkeiten. Schöne aufbereitete Holzdielen, Bogenverzierung an den Wänden und eine originelle Raumanordnung geben der 45 qm großen Wohnung Charme und Behaglichkeit. Dank der Lage im Erdgeschoss braucht man keine Treppen erklimmen und hat alles Gepäck und Einkäufe rasch verstaut.

Die großen originalen Holz-Kastendoppelfenster mit Oberlichtern, sorgen für Licht, gutes Klima, Ruhe und sichere Belüftung. Zudem verfügen sie über Außenrollos. Küche, Esszimmer, Wohnzimmer lassen sich gut im großen Raum unterbringen. Das hintere Zimmer ist durch einen kleinen Flur separiert und groß genug für ein gemütliches Schlafzimmer. Die Wohnung eignet sich alternativ auch gut als Arbeitsrefugium für Kreative mit Atelier und Wohnquartier.

Eigentumswhg

 leer

BERL 18 WE2

VH
EG re. (1)

Berlichingenstr. 18

10553 

Berlin

-Moabit

Fläche

45 m²

Zimmer

2

Zustand

gepflegt

Balkon / Terasse

nein

Aufzug

nein

Keller

ja

Milieuschutz

ja

Denkmalschutz

nein

Hausgeld

229.95 € mtl.

Kaufpreis

244,000 €

zzgl. Provision  (3,57 % des Kaufpreises inkl. MwSt.) für den Käufer.

Wir bieten für den Käufer im Alleinauftrag auf Grundlage unserer Allgemeinen Geschäftsbedingungen zum Kauf an:

Objektbeschreibung

Dieses herrliche gepflegte Berliner Altbaueckhaus aus der Zeit um die Jahrhundertwende besteht aus zwei Vorderhäusern und einem rechten Seitenflügel mit insgesamt 39 Wohnungen und zahlreichen Balkonen. Der zu einer Seite geöffnete Innenhof wurde im Zuge eines gärtnerischen Gestaltungskonzepts begrünt. Darüber hinaus gibt es zwei Garten-/Terrassenflächen, die von den angrenzenden Erdgeschosswohnungen in Form von Sondernutzungsrechten erworben werden können.

Die überwiegende Anzahl der Wohnungen wurde innerhalb der letzten 10 Jahre modernisiert und mit attraktiven Bädern ausgestattet. In diesem Zuge wurde die Elektroanlage in den Wohnungen erneuert und neue Lichttaster und Steckdosen eingebaut. Die zumeist vorhandenen historischen Dielenböden sind überarbeitet und neu holzversiegelt worden. Je nach Notwendigkeit hat man vorhandene Fenster überarbeitet und neu lackiert oder durch moderne Kunststofffenster ersetzt. Die Zimmerdecken in den Fluren, in den Bädern und in den meisten Küchen wurden abgehängt und mit Spots versehen.

Sowohl die Beheizung als auch die Warmwasseraufbereitung erfolgen über den Fernwärmeanschluss. Gepflegte, mit Kokos-Belag ausgestattete Treppenhäuser, eine neue Briefkasten- und Klingelanlage sowie hörerlose Wechselsprechanlagen runden das Angebot ab.

Moabit: Grüner Stadtteil
im Herzen Berlins

m Nordwesten Berlins liegt die sogenannte ‚Moabiter Insel’ von der Spree und begrünten Kanälen umschlossen. Im Osten des Stadtteils befindet sich mit dem Kunstmuseum Hamburger Bahnhof und der Europa City das kulturelle und wirtschaftliche Zentrum. Nördlich der Turmstraße rund um die Putlitzstraße liegt das beliebteste Gründerzeitwohnviertel Moabits. Zahlreiche Kitas, Schulen, Restaurants, Cafés, Bars, kleine Läden und die Armeniusmarkthalle machen das Quartier besonders attraktiv.

Der Unionpark mit Sportanlage und der nur 10 Minuten entfernte Tiergarten werten die Lage weiter auf. Moabit lieg zentral: Die U9 sowie die S-Bahnlinien 41, 42 bringen Einwohnerinnen und Einwohner schnell in alle Teile der Stadt. Der 3 km entfernte Hauptbahnhof Berlin verbindet Moabit mit dem Regional- und Fernverkehr sowie dem Flughafen BER. Die Seenlandschaften im Westen und Norden Berlins ist über die A100 bequem zu erreichen.

Möchten Sie ein Exposé
oder Besichtigung?



























    Schicken Sie uns alternativ eine E-Mail:
    info(at)iwa-real-estate.com

    Datenschutz-Übersicht

    Diese Website verwendet Cookies, damit wir dir die bestmögliche Benutzererfahrung bieten können. Cookie-Informationen werden in deinem Browser gespeichert und führen Funktionen aus, wie das Wiedererkennen von dir, wenn du auf unsere Website zurückkehrst, und hilft unserem Team zu verstehen, welche Abschnitte der Website für dich am interessantesten und nützlichsten sind.