bigger 1900
1900
1600
1440
1280
1160
1024
940
850
767
600
480
360
320
portrait ipad
landscape ipad

Eigentumswhg

in Berlin

-Johannisthal

T27 WE49

Historischer Charme im frischen Look - Erstbezug nach Sanierung

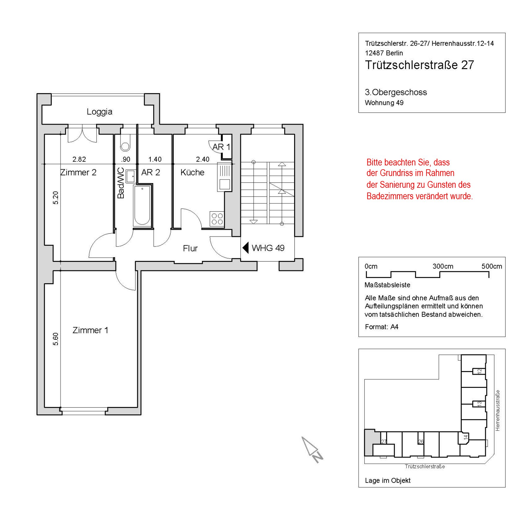
Die umsichtig sanierte Wohnung bietet auf knapp 60 Quadratmetern eine Fülle an Lebensqualität. Der honigfarbene Dielenboden vermittelt schon beim Öffnen der Eingangstür Behaglichkeit. Durch die Glasfelder der historischen Türen fällt Licht in den Wohnungsflur. Von hier aus ist jeder der Räume zugänglich. Sowohl Offenheit als auch Rückzug sind möglich.

Das Schlafzimmer, zum grünen Hof hinaus, ist groß genug, noch einen Schreibtisch zu platzieren. Direkt von hier aus auf den Balkon zu treten, verleiht dem Raum einen ganz besonderen Reiz: Morgens frische Luft, abends Ruhe, dazwischen viel Licht, Platz für üppige Bepflanzung und entspannte Stunden im Freien. Das Wohnzimmer erlaubt einen Blick von oben auf die Anliegerstraße. Im Abstellraum ist Platz für die Waschmaschine und den Trockner vorgesehen. Das Tageslichtbad verfügt über moderne Bad-Installationen und ist elegant gefliest. Ein Küchensofa ans Fenster der Küche und es ist alles beisammen für ein schönes Leben unter’m Himmel von Berlin.  

Eigentumswhg

 leer

T27 WE49

VH
3.OG re.

Trützschlerstr. 27

12487 

Berlin

-Johannisthal

Fläche

61 m²

Zimmer

2

Zustand

saniert

Balkon / Terasse

Loggia

Aufzug

nein

Milieuschutz

nein

Denkmalschutz

nein

Hausgeld

258.91 € mtl.

Status / Preis

verkauft

Wir bieten für den Käufer im Alleinauftrag auf Grundlage unserer Allgemeinen Geschäftsbedingungen zum Kauf an:

Objektbeschreibung

Der klassische Altbaukomplex aus den 1930er Jahren liegt an einem historischen Standort in einer ruhigen Seitenstraße östlich des Sterndamms. Das gepflegte Ensemble umfasst 59 Wohneinheiten sowie eine Gewerbeeinheit.

Die 2- bis 4-Zimmerwohnungen mit Wohnflächen von ca. 55 m² bis 97 m² bieten attraktive Grundrisse für Singles, Paare und Familien. Balkone, Loggien oder Terrassen erhöhen den Wohnkomfort zusätzlich. Beheizt wird die Immobilie über Fernwärme.

Das Objekt verfügt über fünf Hauseingänge, die sich um einen großzügigen, begrünten Gemeinschaftshof gruppieren. In den vergangenen Jahren wurde die Immobilie umfassend aufgewertet. So wurden die Treppenhäuser modernisiert, inklusive der Verlegung eines Sisalbelags, der Erneuerung der Briefkastenanlagen sowie der Treppenhausbeleuchtung. Darüber hinaus wurden die Außen- und Wegeanlagen komplett erneuert und zusätzlich ein großzügiger Spielplatz im Innenhof neu angelegt.

In diesem Zuge wurde das gesamte Dach vollständig erneuert, teils neu gestaltet und zu elf Eigentumswohnungen ausgebaut. Eigens und ausschließlich für das Dachgeschoss wurde im Hof ein separater Aufzug installiert.

Die Lage bietet eine sehr gute Anbindung: Stadtbahn- und Bushaltestellen sowie Einkaufsmöglichkeiten befinden sich in unmittelbarer Nähe. Vom S-Bahnhof Schöneweide ist die Berliner Innenstadt in rund 20 Minuten erreichbar.

Joahnnisthal:
Ein zuhause mit glorreicher Vergangenheit

Vor mehr als 100 Jahren wurde in Johannisthal Geschichte geschrieben. Hier hoben sich vor den begeisterten Augen der Berliner Prominenz die ersten deutschen Motorflugzeuge in die Lüfte. Noch heute ist etwas von dem Glanz der damaligen Zeit in Johannisthal spürbar. Der Ortsteil, der zu Treptow-Köpenick gehört, bietet seinen Einwohnerinnen und Einwohnern eine gutbürgerliche, ruhige Wohngegend. Charmante Altbauten in lockerer Bebauung prägen das Bild des Ortsteils, der an den Wissenschaftsstandort Adlershof grenzt.

Am Sterndamm, der Haupteinkaufsstraße in Johannisthal, befinden sich zahlreiche Geschäfte, Cafés, Restaurants und das modern ausgestattete Kino Astra. Nicht weit entfernt überrascht der Johannisthaler Landschaftspark mit insgesamt 65 Hektar Grünfläche.

Auf dem ehemaligen Flugplatzgelände laden Spiel- und Liegewiesen zur Erholung ein. Wen es noch weiter in die Natur zieht, der erreicht über die A113 in nur wenigen Minuten die weite Gewässerlandschaft Brandenburgs und den Spreewald.

Möchten Sie ein Exposé
oder Besichtigung?



























    Schicken Sie uns alternativ eine E-Mail:
    info(at)iwa-real-estate.com

    Datenschutz-Übersicht

    Diese Website verwendet Cookies, damit wir dir die bestmögliche Benutzererfahrung bieten können. Cookie-Informationen werden in deinem Browser gespeichert und führen Funktionen aus, wie das Wiedererkennen von dir, wenn du auf unsere Website zurückkehrst, und hilft unserem Team zu verstehen, welche Abschnitte der Website für dich am interessantesten und nützlichsten sind.