bigger 1900
1900
1600
1440
1280
1160
1024
940
850
767
600
480
360
320
portrait ipad
landscape ipad

Eigentumswhg

in Berlin

-Tempelhof

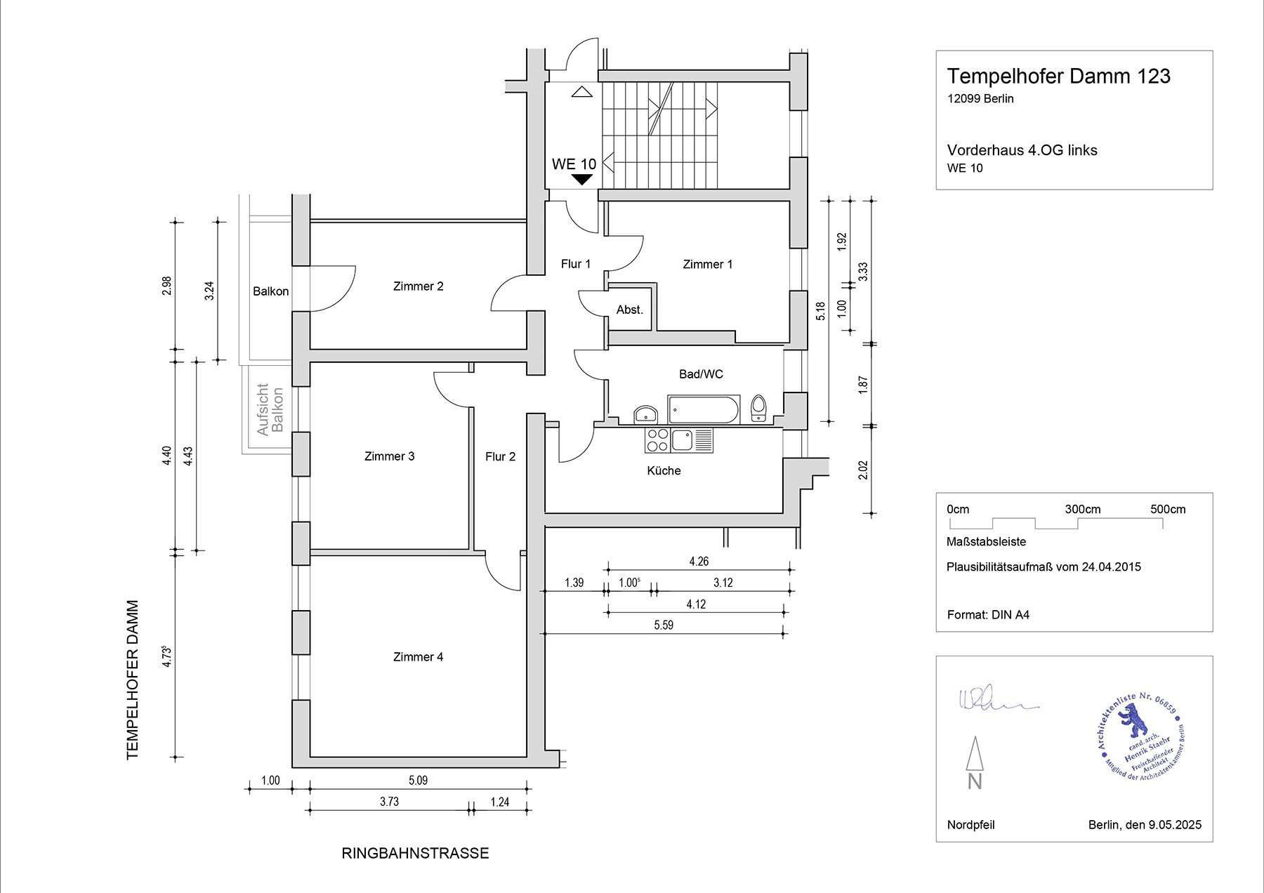
THD 123 WE10

Darf es etwas mehr sein – Gründerzeitwohnung mit vielfältigen Nutzungsoptionen

Die großzügig angelegte Wohnung befindet sich im vierten Obergeschoss. Die 101 Quadratmeter sind auf vier Zimmer, eine geräumige Tageslichtküche, ein Tageslichtbad, zwei praktische Flure und eine Abstellkammer aufgeteilt. Die beiden Flure sind zueinander leicht versetzt, erzeugen somit eine kleine überraschende weitere Sichtachse und bieten zusätzlich Stellfläche z.B. für Bücherregale. Jedes Zimmer ist separat begehbar.

Damit eignet sich die Wohnung gut für eine Wohngemeinschaft, als Familienwohnung oder für Selbständige mit einem separat nutzbaren Büro. Gerade das an der Haustür gelegene Zimmer mit der Ausrichtung zum ruhigen Hof ist als Arbeitszimmer vorstellbar. Das gen Westen liegende Balkonzimmer ließe sich als Esszimmer nutzen. Man denke sich die Sommerabende auf dem Balkon hoch über der Straße im Abendlicht gemütlich mit einem Glas Wein zu zelebrieren.

Die Wohnung wird unrenoviert verkauft, befindet sich aber in einem guten Zustand. Die Wände sind im Grundanstrich weiß gehalten. Die aufgearbeiteten Dielenböden geben der Wohnung zusätzlich eine warme und behagliche Atmosphäre. Einige der Zimmerdecken sind mit Stuckleisten oder Stuckrosetten verziert. Das Wannenbad ist modern gefliest und mit wertiger Sanitärausstattung versehen. Alle Türen sind originale, weiß lackierte Holztüren.

Eigentumswhg

 leer

THD 123 WE10

VH
4.OG li.

Tempelhofer Damm 123

12099 

Berlin

-Tempelhof

Fläche

101 m²

Zimmer

4

Zustand

unrenoviert

Balkon / Terasse

ja

Aufzug

nein

Keller

ja

Milieuschutz

ja

Denkmalschutz

nein

Hausgeld

354.64 € mtl.

Status / Preis

reserviert

Wir bieten für den Käufer im Alleinauftrag auf Grundlage unserer Allgemeinen Geschäftsbedingungen zum Kauf an:

Objektbeschreibung

Die beiden Häuser Tempelhofer Damm 123 und Ringbahnstraße 72 sind in der Gründerzeit gebaut worden. Entsprechend sind die Treppenaufgänge mit geschwungenen Handläufen, zeitgenössischen Türen, Mosaik-Fliesen und stuckverzierten Decken versehen. Die Wohnungen sind großzügig angelegt.

Das Haus Tempelhofer Damm 123 hat 11 Wohneinheiten, mit insgesamt 860 qm Wohnfläche und 284 qm Gewerbefläche. Die Wohnungen in den Obergeschossen haben Balkone. Im Erdgeschoss befinden sich Gewerberäume.

Das Haus Ringbahnstraße 72 hat 9 Wohnungen. Auch hier befindet sich im Erdgeschoss eine Gewerbeeinheit. Das Haus hat eine Südausrichtung und ist daher sehr hell. Beide Häuser sind voll unterkellert. Die Fassaden und Treppenhäuser werden derzeit saniert.

Tempelhof: zu Hause im Stadtteil am Wasser

Im Herzen Berlins liegt der Stadtteil Tempelhof. Entlang des Teltowkanals erstrecken sich bürgerliche Wohnviertel, Grünflächen, aber auch industriell geprägte Straßenzüge. Hier haben sich Großunternehmen und mittelständische Betriebe angesiedelt.

Vom Tempelhofer Damm und der Ringbahnstraße sind es nur wenige Gehminuten bis zum Tempelhofer Feld – seit 2010 die größte Freizeit-Grünfläche Berlins. Ein beliebter Ort, unter dem weiten Himmel aufzutanken, ein Sonnenbad zu nehmen, sich mit Freunden zum Picknick zu treffen, zu joggen oder an Wochenenden zu grillen. Im Sommer finden hier Konzerte statt.

Auch kulturell hat Tempelhof etwas zu bieten. Nach einer viertel Stunde ist die berühmte ufaFabrik erreicht. Auf dem ehemaligen Gelände der berühmten Universum Film AG befindet ein Kulturzentrum mit vielfältigem Bühnenprogramm, einem Kinderbauernhof, Sportangeboten und einem Café. Mit dem Hafen Tempelhof am Teltowkanal besitzt der Stadtteil eine besondere Attraktion. Rund um das Hafenbecken gibt es Restaurants, Bars und zahlreiche Einkaufsmöglichkeiten.

Das markante Ullsteinhaus – ein 7-stöckiges Backsteingebäude aus den 1920er Jahren – ist als Landmarke von Weitem sichtbar. An andere Bezirke und an das Umland ist Tempelhof ideal durch die Stadtautobahn A 100, zahlreichen U- und S-Bahnlinien sowie einen Fernbahnhof angebunden.

Möchten Sie ein Exposé
oder Besichtigung?



























    Schicken Sie uns alternativ eine E-Mail:
    info(at)iwa-real-estate.com

    Datenschutz-Übersicht

    Diese Website verwendet Cookies, damit wir dir die bestmögliche Benutzererfahrung bieten können. Cookie-Informationen werden in deinem Browser gespeichert und führen Funktionen aus, wie das Wiedererkennen von dir, wenn du auf unsere Website zurückkehrst, und hilft unserem Team zu verstehen, welche Abschnitte der Website für dich am interessantesten und nützlichsten sind.